OPPORTUNITÉ
Terrain de 70.000 m² à Mojácar – Idéal pour projet résidentiel ou commercial
Mojácar (Pueblo Indalo-Ventanicas-El Cantal) - REF. 3141
vente: 11.000.000 €
Description


Belle opportunité de développement à Mojácar !

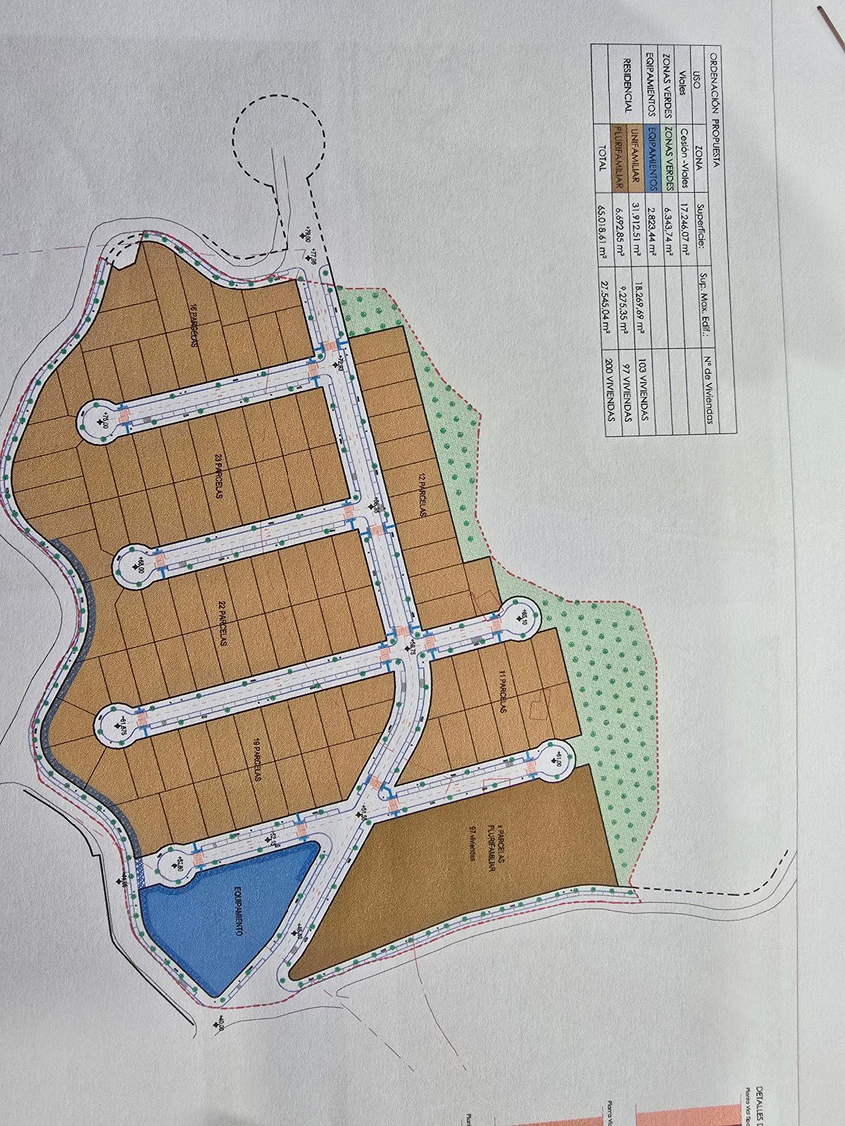
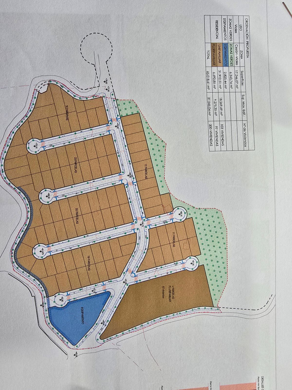
Ce vaste terrain de 70.000 m², situé au cœur de Mojácar, constitue une occasion unique pour les promoteurs à la recherche d’un projet résidentiel ou mixte dans une zone en plein essor. Classé en terrain urbanisable sectorisé (Code : SUS-8 Huerto del Escribano), il combine emplacement stratégique, infrastructures disponibles et fort potentiel de rentabilité.


Avec une superficie totale de 70.000 m² et 27.545 m² constructibles, ce site permet une grande liberté de conception. Le règlement autorise jusqu’à deux étages, parfait pour des maisons individuelles, villas de luxe ou espaces commerciaux modernes répondant à la demande croissante du marché local.


Le terrain bénéficie d’un accès direct par voirie urbaine et de tous les équipements essentiels : eau, électricité, égouts, éclairage public et trottoirs. Ces caractéristiques facilitent considérablement la mise en œuvre d’un projet d’urbanisation rapide et efficace.


Idéalement situé dans le tissu urbain de Mojácar, le terrain est proche de toutes les commodités : commerces, écoles, restaurants et plages. Le développement nécessitera la préparation d’un Plan Partiel, d’un Plan d’Urbanisation et d’un Plan de Lotissement, conformément au Dossier de Planification Urbaine en vigueur.


Mojácar est un joyau de la Méditerranée, célèbre pour ses maisons blanches, ses 17 kilomètres de plages et son climat ensoleillé toute l’année. L’intérêt croissant pour l’immobilier local et la qualité de vie exceptionnelle en font un choix privilégié pour les investisseurs.


Ce terrain offre un potentiel exceptionnel pour concevoir un projet alliant architecture contemporaine, durabilité et cadre de vie méditerranéen. Qu’il s’agisse d’un complexe résidentiel haut de gamme, d’un resort touristique ou d’un pôle commercial, les perspectives de rentabilité et de croissance sont assurées.


En résumé, ce terrain de 70.000 m² à Mojácar est une occasion rare de participer au développement d’une destination emblématique d’Almería. Prêt à accueillir votre projet, il combine emplacement, services et potentiel exceptionnel.

Caractéristiques
Prix de vente 11.000.000 €
Prix/m² 157 €/m²
Utile 70.000 m2
Terrain 70.000 m2
Électricité
Eau
Emplacement
L'adresse de la propriété est approximative.
Échelles d'efficacité



Nous contacter

Si vous souhaitez plus d'informations sur cette propriété, veuillez remplir le formulaire:

 Oui, j'ai lu et/ou j'accepte les Conditions d'utilisation et la Politique de confidentialité
Galerie